07.10.2025 saat:14:00 tarihnde gerçekleştirilecek İç Mekan ve Mobilya Teknolojisi alanı Kalfalık düzeyindeki sınaıv ürünü aşağıda verilen görseldeki (genişilk:80 cm , uzunluk:80 cm ve Yükseklik:50 cm) mobilya planıyla ve ikinci resimde verilen renkte imal edilip değerlendirme yapılacaktır.
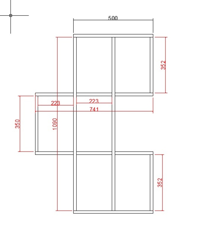
07.10.2025 saat:09:30 tarihnde gerçekleştirilecek İç Mekan ve Mobilya Teknolojisi alanı Ustalık düzeyindeki sınaıv ürünü aşağıda verilen şema doğrultusunda ve son resimde verilen renkte imal edilip değerlendirme yapılacaktır.
Beğen |
0 kişi beğendi